Eladó lakás Kozármisleny 86 200 000 Ft

Leírás

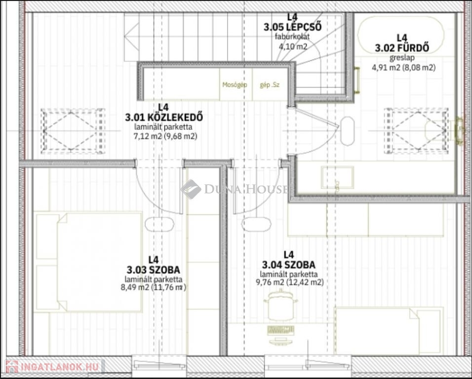
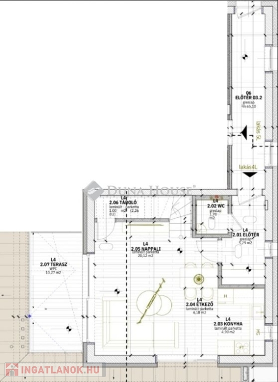
Kozármisleny folyamatosan fejlődő új részén 8 lakásból álló épületben modern, új építésű lakások eladók!Első emeleti belső kétszintes lakás nappali-konyha -étkező, 2 szobás teraszos lakás, saját autó beállóval eladó!4. Lakás első emeleti 77/96m2 helyiség lista:- Nappali- Konyha- Étkező- Terasz 10,27m2- Külön WC helyiség-Tároló helyiségTetőtér:- 2 db szoba- FürdőszobaA lakópark modern, energiahatékony rendszerekkel épül, tökéletes harmóniát képez a természettel.A lakások kényelmes, modern, funkcionális elrendezéssel, szép panorámával, magas, prémium minőségű anyagok felhasználásával csábítják új lakóikat.Minden lakáshoz díjmentes parkolóhely tartozik, a földszinti lakások saját kerttel, az emeleti lakások terasszal rendelkeznek.Az L alakú épület egy védett közösségi teret ölel körül, ahol egy közös park kerül kialakításra. Ez a védett közösségi tér az igények szerint alakítható. Lehet találkozási pont, akár medence és játszótér is megvalósítható erre a területre.A környezet kisgyermekes családok részére is biztonságos, sebességkorlátozott övezet, a közelben új óvoda, kiváló iskola is várja a gyerekeket.Műszaki tartalom:- 30cm X-Therm vázkerámia falazó-blok, 12cm grafitos hőszigetelés- 30cm födém szigetelés- Hőszigetelt műanyag nyílászárók- Földszinti gépházban kialakított hőszivattyús padlófűtésrendszer és lakásonként fan-coil gyors felfűtésre és hűtésre alkalmas rendszer, HMV körben kialakított használati melegvíz cirkulációs rendszer- Konyhákban, fürdőszobákban, Wc-ben kialakított szellőztetőrendszer közvetlenül a szabadba vezetveAz épületben még több lakás elérhető, érdeklődjön a lakások után!

Lakás részletei

Ár: 86 200 000 Ft
Méret: 96 négyzetméter
Azonosító: 11611101
Irodai azonosító: LK044347-5077465
Cím: Kozármislenyi 96 nm-es lakás eladó
Emelet: 1. emelet
Építőanyag: Tégla
Fűtés jellege: Hőszivattyú
Ingatlan állapota: Épülő
Építési év: Új építésű
Egész szobák: 3

Egyéb jellemzők

  • Erkély

Térkép