Eladó lakás Kozármisleny 86 200 000 Ft

Leírás

Kozármisleny folyamatosan fejlődő új részén 8 lakásból álló épületben modern, új építésű lakások eladók!

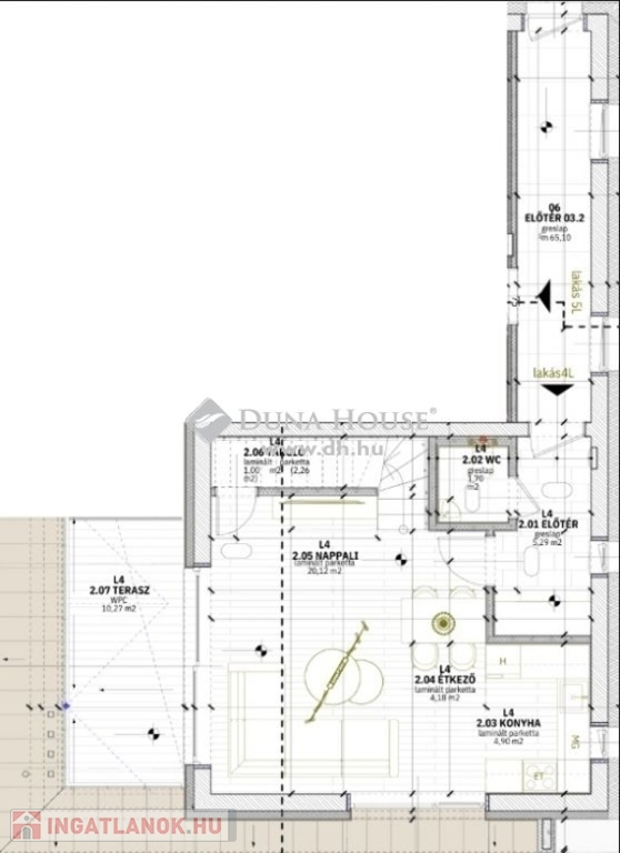
Első emeleti belső kétszintes lakás nappali-konyha -étkező, 2 szobás teraszos lakás, saját autó beállóval eladó!

4. Lakás első emeleti 77/96m2
helyiség lista:
- Nappali
- Konyha
- Étkező
- Terasz 10,27m2
- Külön WC helyiség
-Tároló helyiség

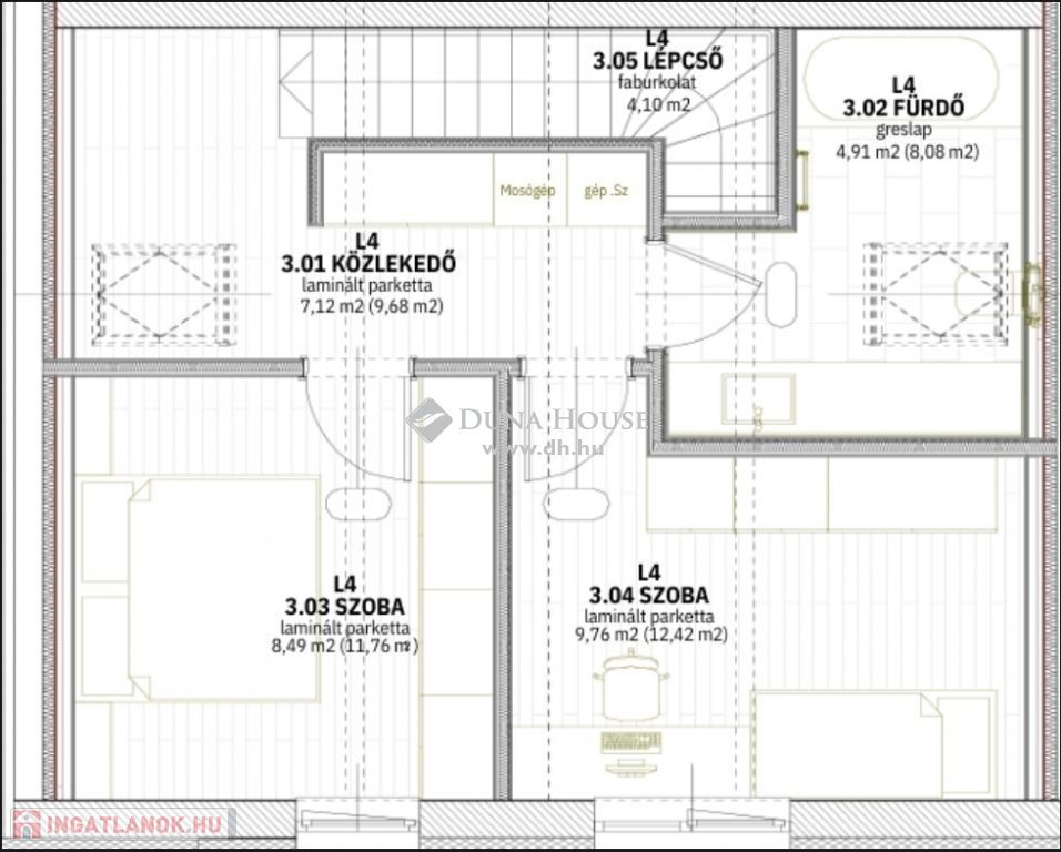
Tetőtér:
- 2 db szoba
- Fürdőszoba

A lakópark modern, energiahatékony rendszerekkel épül, tökéletes harmóniát képez a természettel.A lakások kényelmes, modern, funkcionális elrendezéssel, szép panorámával, magas, prémium minőségű anyagok felhasználásával csábítják új lakóikat.

Minden lakáshoz díjmentes parkolóhely tartozik, a földszinti lakások saját kerttel, az emeleti lakások terasszal rendelkeznek.
Az L alakú épület egy védett közösségi teret ölel körül, ahol egy közös park kerül kialakításra.

Ez a védett közösségi tér az igények szerint alakítható. Lehet találkozási pont, akár medence és játszótér is megvalósítható erre a területre.A környezet kisgyermekes családok részére is biztonságos, sebességkorlátozott övezet, a közelben új óvoda, kiváló iskola is várja a gyerekeket.

Műszaki tartalom:
- 30cm X-Therm vázkerámia falazó-blok, 12cm grafitos hőszigetelés
- 30cm födém szigetelés
- Hőszigetelt műanyag nyílászárók
- Földszinti gépházban kialakított hőszivattyús padlófűtésrendszer és lakásonként fan-coil gyors felfűtésre és hűtésre alkalmas rendszer, HMV körben kialakított használati melegvíz cirkulációs rendszer
- Konyhákban, fürdőszobákban, Wc-ben kialakított szellőztetőrendszer közvetlenül a szabadba vezetve

Az épületben még több lakás elérhető, érdeklődjön a lakások után!

Lakás részletei

Ár: 86 200 000 Ft
Méret: 96 négyzetméter
Azonosító: 11499176
Irodai azonosító: LK044347-4884164
Cím: Kozármislenyi eladó 96 nm-es lakás
Emelet: 1. emelet
Építőanyag: Tégla
Fűtés jellege: Hőszivattyú
Ingatlan állapota: Épülő
Építési év: Új építésű
Egész szobák: 3

Egyéb jellemzők

  • Kocsibeálló

Térkép