Eladó családi ház Orfű 134 900 000 Ft

Leírás

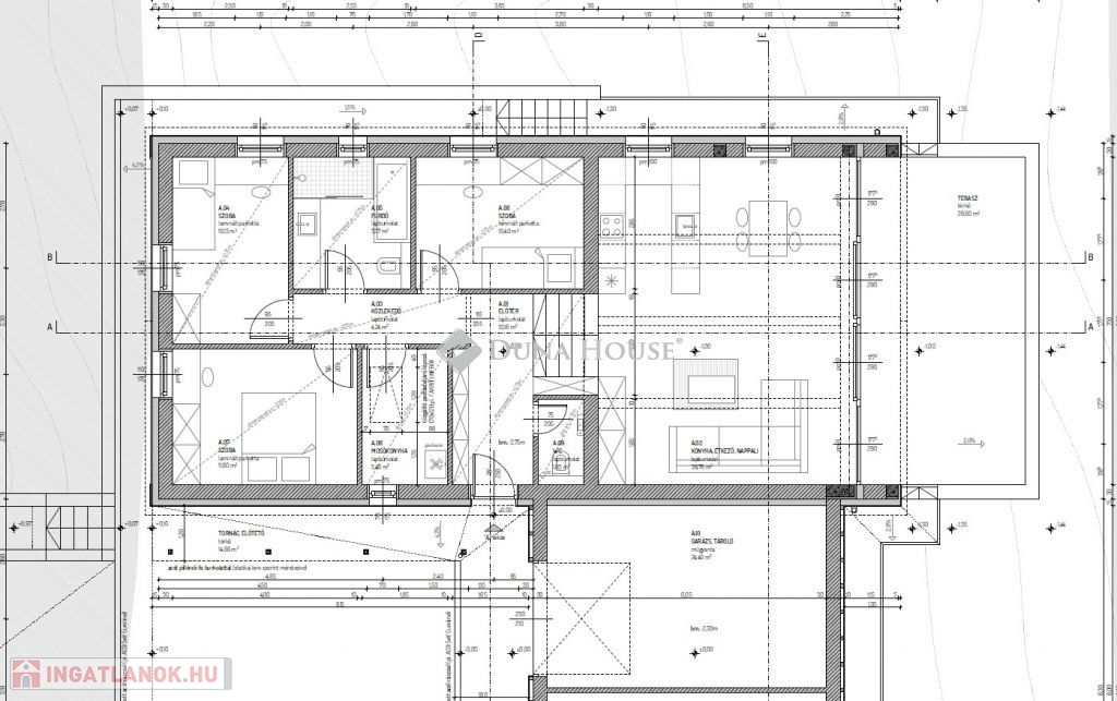
ELADÓ ÚJ ÉPÍTÉSŰ CSALÁDI HÁZ ORFŰN!Orfű páratlan környezetében kínálunk Önnek megvételre gyönyörű, örökpanorámás házat. A település kimondottan csendes részén, zöldövezetben helyezkedik el, 140 m2-es családi ház , garázzsal, amely nyaralóként vagy lakóházként is egyaránt kitűnően használható.Az ingatlan lakóövezetben helyezkedik el, összközműves, gázfűtéses. A telek területe 527 m2.A családi házban 3 hálószoba, nappali, konyha, külön WC és fürdő található. A napfényes elhelyezkedésnek köszönhetően a lakás hangulatos és világos.Pár perces sétával érhető el a Pécsi-tó.Fontosabb műszaki adatok:- Az ingatlan tehermentes, állami támogatás igénybe vehető.- A belső tér a vevő igényei szerint kerül kialakításra.- Nappali és konyha részben emelt belmagasság- Panorámás kilátás a Mecsekre- 30-as porotherm tégla 15-ös szigeteléssel- Műanyag nyílászárók, 3 rétegű üveggel- I.osztályú szaniterek és burkolatok.- 1 szintes lakótér: 3 szoba, 1 fürdő, 1 külön WC, valamint tágas, teraszra nyíló nappali, konyha és garázs.- A ház tartozik még 28m2-es terasz.

Családi ház részletei

Ár: 134 900 000 Ft
Méret: 140 négyzetméter
Azonosító: 11589754
Irodai azonosító: HZ066286-4553175
Cím: Orfűi 140 nm-es ház eladó
Telek: 527 négyzetméter
Ingatlan állapota: Épülő
Jelleg: családi ház
Építőanyag: Tégla
Fűtés jellege: Cirkó
Fűtés módja: Gáz
Komfort fokozat: Összkomfort
Kor: Új építésű
Szintek száma: Földszintes
Egész szobák: 4

Egyéb jellemzők

  • Garázs

Térkép