Eladó családi ház Görcsöny 98 000 000 Ft

Leírás

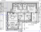
EGYEDI LEHETŐSÉG, KIEMELT MŰSZAKI TARTALOM!!! Görcsönyben eladó 134 nm-es egy szintes lakótérrel rendelkező, tágas amerikai konyha-nappali+ 3 szoba elosztású, hőszivattyús rendszerrel (padlófűtéssel) fűtött, klímás, új építésű tégla ház, 2 terasszal, 995 nm-es telken.Eladó ez a kivételes, új építésű, prémium műszaki tartalommal rendelkező családi ház, amely a legmagasabb energetikai és kényelmi elvárásoknak is megfelel. Az ingatlan 134 m2 lakóterű, ideális választás családok számára, akik nyugodt, minőségű otthont keresnek.Tágas nappali, 4 külön nyíló szoba, ((amerikai konyha-nappali-étkező + 3 hálószoba), 2 gardrób, nagy előszoba, kertkapcsolatos terasz, letisztult modern építészeti megoldások, parkosított kert lehetőségével.A projekt előfinanszírozással megvásárolható!Ez lehetőséget biztosít arra, hogy már az építés során személyre szabd az otthonod - választhatsz burkolatokat, színeket, vagy akár kisebb alaprajzi módosításokat is a kivitelezés fázisától függően.Lakások főbb jellemzői:- tágas teraszok- 3 lakáshoz SAJÁT KERTKAPCSOLAT- MINŐSÉGI ANYAGOKBÓL történik a kivitelezés- Wienerberger Porotherm 30 N+F téglat+ 15 cm-es grafitos hőszigetelés- HŐSZIVATTYÚS FŰTÉSRENDSZER, PADLÓFŰTÉSSEL- BELSŐ KIALAKÍTÁS VEVŐ KÉRÉSRE MÉG MÓDOSÍTHATÓ- Burkolatok, szaniterek egyedi igények szerint választhatókAz ingatlan várható átadása: 2026 ősz!CSOK és egyéb állami támogatások igénybe vehetők!A kulcsrakész vételár: 98 M FtAz ár kulcsrakész állapotban történő átadással értendő, konyhabútor és lámpatestek nélkül!

Családi ház részletei

Ár: 98 000 000 Ft
Méret: 134 négyzetméter
Azonosító: 11573473
Irodai azonosító: HZ020576-5064897
Cím: Görcsönyi 134 nm-es ház eladó
Telek: 995 négyzetméter
Ingatlan állapota: Épülő
Jelleg: családi ház
Építőanyag: Tégla
Fűtés jellege: Villany
Fűtés módja: Hőszivattyú
Kor: Új építésű
Szintek száma: Földszintes
Egész szobák: 4

Térkép